Visual Portfolio, Posts & Image Gallery for WordPress

Restaurant über dem See

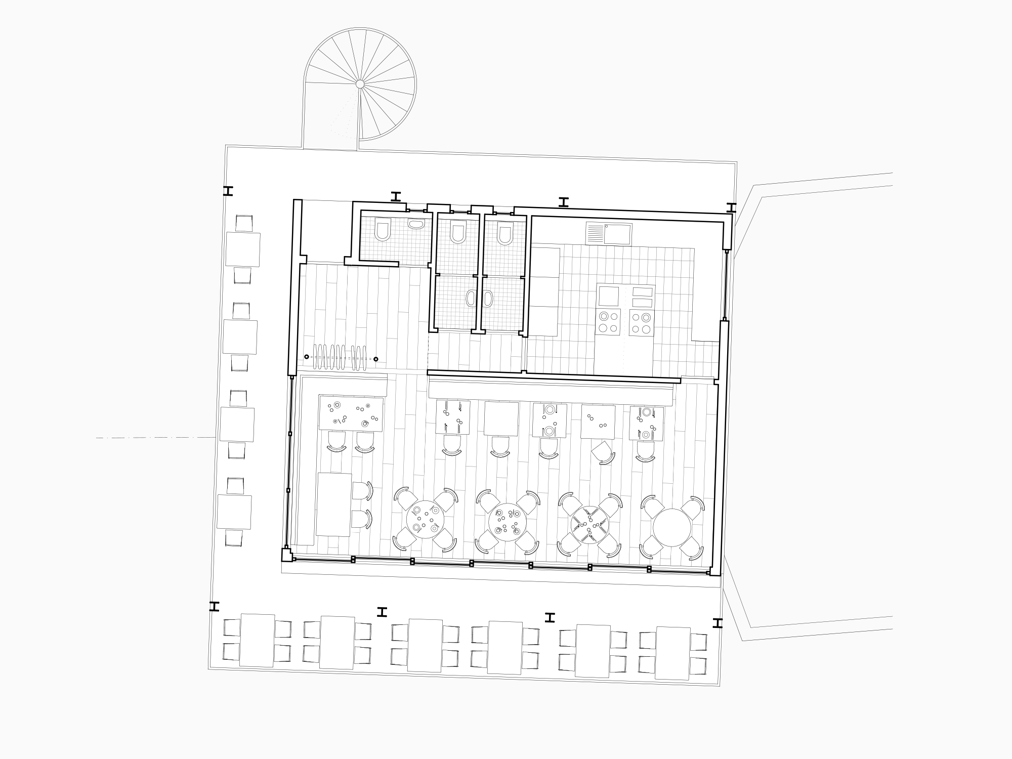
Der Einbau eines Restaurants auf dem Dach einer Bootswerft ergänzt das Areal an der Bellerivestrasse direkt am Zürcher Seeufer mit einer öffentlichen Nutzung. Die massive Gebäudestruktur der heutigen Bootswerft wurde während des S-Bahnbaus Ende der 1980er-Jahre als Umladestelle von Frachtbooten auf Lastwagen erstellt.

Kern der Aufgabe war, einen Gastrobetrieb und seinen Zugang gleichzeitig mit dem laufenden Werftbetrieb zu ermöglichen – insbesondere mit den im Winterbetrieb auf das Dach ausgewasserten Segelbooten. Um die Nutzungen zu entflechten und sich im rauen Kontext des Gebäudes, des Gewerbebetriebs und der exponierten Lage zu behaupten, befindet sich der Restaurantbetrieb ein Geschoss erhöht und überspannt die Struktur der Lichtlaternen der darunterliegenden Werkhalle. Dies wird durch eine rigide Stahlstruktur ermöglicht, welche an den Fassaden ablesbar bleibt. Im Innenraum finden als Kontrast weichere Materialien wie strukturierte Holzverschalungen Eingang und bilden eine Reminiszenz an Bootskajüten.

Auftraggeber:

Privat

Adresse, Ort:

Bellerivestrasse, Zürich

Verfahren:

Projektstudie, 2013

Nutzung:

Gastronomie

Projektteam:

Julian Ganz, Lorenz Mörikofer